联系我们

广州弘天通讯设备

江生

159-9245-2221(推销勿扰)

15992452221

747675366

747675366@qq.com

广州市大龙街沙环西路21号101

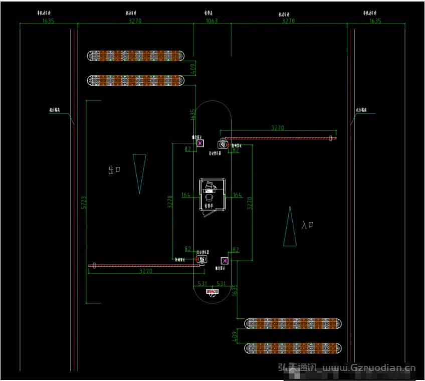
停车场出入口系统图、大样图、接线图

发布者:广州弘天通迅设备发布时间:2025-12-07访问量:254

停车场出入口道闸的图纸,停车场出入口常见的系统图、大样图、接线图。

整体大样图:

停车场出入口系统图、大样图、接线图

停车场出入口系统图、大样图、接线图

停车场出入口系统图、大样图、接线图

安全岛大样图:

停车场出入口系统图、大样图、接线图

整体接线图:

停车场出入口系统图、大样图、接线图


光纤熔接业务:
我司拥有的光纤熔接安装工具、光缆线路测试仪、光纤测试设备等。承接全广州番禺南沙从化黄埔天河海珠越秀荔湾)及全佛山禅城顺德南海三水高明)等同行光纤熔接业务,专业熔纤多年,OTDR光时域测试,光纤通断测试,光纤质量测试,断点故障排查,大小机房割接,光纤施工,光纤维修等。价格保证较优销售光纤光缆、光纤收发器、光纤模块、光纤配件等!!!

关注微信公众号
微信扫一扫,加好友

遇到问题?请给我们留言

请填写您的电话号码,我们将回复您电话